Projekt

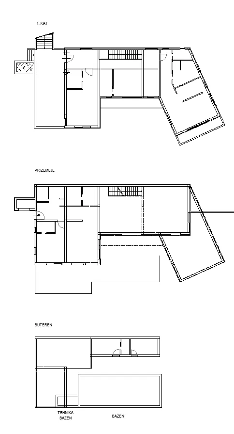
Kuća C. i Kuća W.

Lokva Rogoznica

Kuća C. i Kuća W. — prikaz 1
Kuća C. i Kuća W. — prikaz 2
Kuća C. i Kuća W. — prikaz 3
Kuća C. i Kuća W. — prikaz 4
Kuća C. i Kuća W. — prikaz 5
Kuća C. i Kuća W. — prikaz 6